Montaje y manipulación
Contacto
Series
B1.8233

Bridas de sujeción tipo bloque

sin/con función «Fail-Safe»
doble efecto, presión máx. de servicio 70 y 100 bar
Bridas de sujeción tipo bloque
Descargas
Hoja del catálogo
Instrucciones de servicio
Informaciones de la serie
Descripción
B 1.8233 Bridas de sujeción tipo bloque sin/con función «Fail-Safe»

Función «Fail-Safe»
Se mantiene la fuerza de sujeción íntegra, tanto en caso de caída de presión como de pérdida total de presión. Esto se consigue mediante el apriete con autorretención del bulón de sujeción.

Aplicación
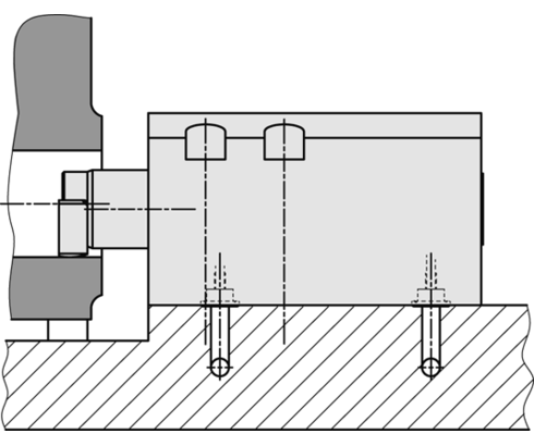
Las bridas hidráulicas tipo bloque de sujeción son particularmente apropiados para el blocaje de piezas a mecanizar que necesitan un grán espacio libre para el mecanizado y para aplicaciones donde las bridas de sujeción y las garras giratorias están demasiado grandes. Particularmente para el mecanizado de 5 caras la altura de montaje mínima de las bridas tipo bloque de sujeción y la posibilidad de sumergir y de blocar en orificios o taladros horizontales están particularmente ventajosas.
La brida de sujeción tipo bloque con función «Fail-Safe» se utiliza de preferencia sobre paletas de sujeción que se desconectan después de la operación de sujeción del generador de presión. La presión mínima de servicio de 70 ó 100 bar permite la conexión directa a la hidráulica de baja presión de muchas máquinas de mecanizado.

Accesorios (3)
Referencia Datos CAD Descripción
Referencia
Datos CAD
Descripción
Junta tórica 8 x 1,5 mm, NBR según la hoja del catálogo B1.5091
Referencia
Datos CAD
Descripción
Tornillo de cierre VSD G1/4 A máx. 400 bar, según la hoja del catálogo F9.300
Referencia
Datos CAD
Descripción
Tornillo de cierre VSD G1/8 A máx. 400 bar, según la hoja del catálogo F9.300
Cargando…